OUR WORK

Listed Building Architect, Sittingbourne Smaal extension design in Kent Listed building hire architect
architect for listed residential building residential extension designer

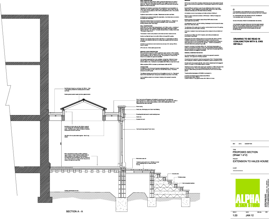
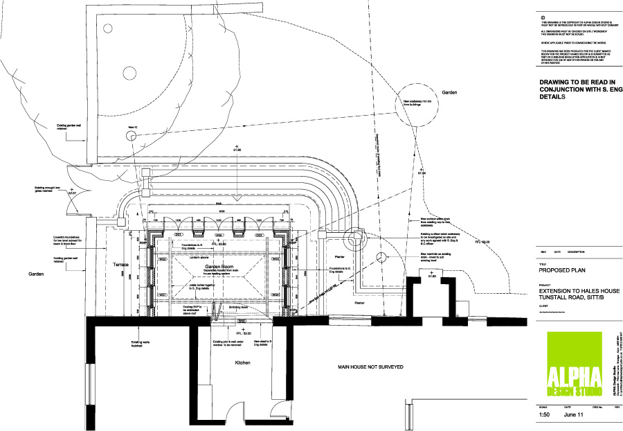
EXTENSION TO A GRADE II LISTED BUILDING

Single storey rear extension to a Grade II Listed Building providing a morning / garden room accessed directly off the existing kitchen whilst providing uninterrupted views from the room to enjoy the mature gardens.

The intension was to create one large internal space and therefore it was essential that no change of floor level occurs when passing into the extension – this required careful design of the external landscaping to ensure a smooth transition to the lower garden area.