OUR WORK
SERVICES
CONTACT
OUR WORK
BACK TO ALL WORK
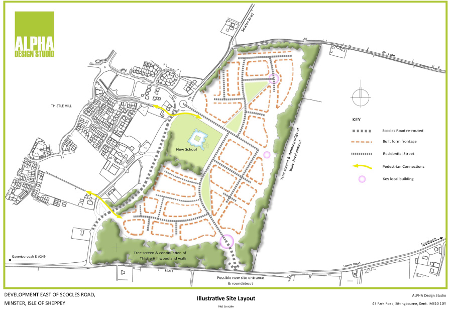
Housing & School Masterplan
Description coming soon.