OUR WORK

School extension Project Architect, Sittingbourne Residential Architect, Canterbury Freelance Architect in Kent
Educational Build Project Architect, Sittingbourne School architect in Kent

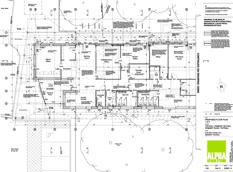
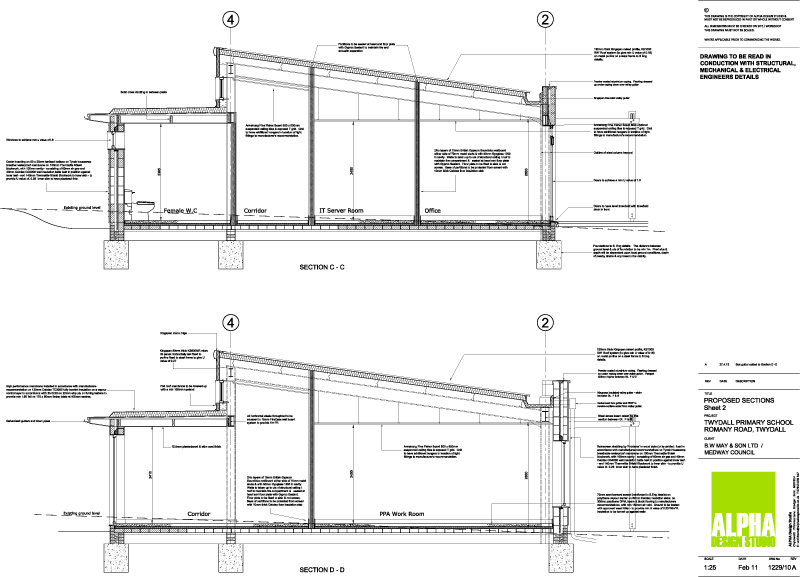
Twydall School

Description coming soon...